Unser Haus liegt idyllisch am grünen Deich der "Kleinen Weser" und ist nur einen Spaziergang von der Altstadt entfernt.
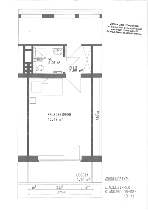
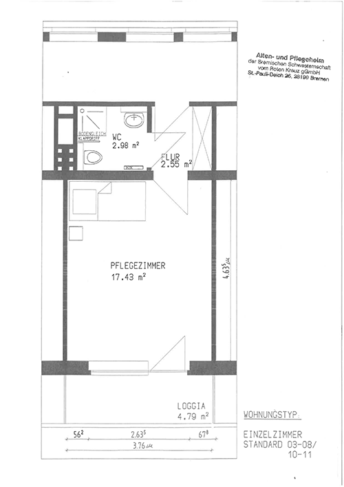
Unsere großzügigen Einzelzimmer haben alle einen Balkon mit Blick über Bäume und Wasser. Sie sind ausgestattet mit einem behindertengerechten Bad. Von 2006 bis 2008 sind unsere Räumlichkeiten umfassend modernisiert und saniert worden. Ihr Zimmer richten Sie mit eigenen Möbeln ein, das Pflegebett stellen wir Ihnen.
In unserem Haus leben 71 Bewohner und 12 Kurzzeitpflege-Gäste. In der Langzeitpflege halten wir folgende Zimmer vor:
Den beispielhaften Grundriss eines Zimmers sehen Sie hier:

Das Haus ist in zwei Wohnbereiche aufgeteilt (1.-3. Etage = Unterer Wohnbereich / 4.-6. Etage = Oberer Wohnbereich). In jedem Wohnbereich ist eine Pflegebereichsleitung mit ihrem jeweiligen Team für unsere Bewohner zuständig.
Diese Räume stehen allen Bewohnerinnen und Bewohnern zur Verfügung:





